Home

Große Mietwohnung in Waidhofen an der Thaya, 3830

Österreich (AT) · 3830 Waidhofen an der Thaya · Hammernikgasse 3a 1 Top 6

Miet-Wohnung in Waidhofen/Thaya >100m²

Willkommen in Ihrem neuen Zuhause im Herzen von Waidhofen! Diese großzügige, helle Wohnung bietet auf 109,47 m² Wohnfläche (plus 13,49 m² Loggia + Garagenplatz) ein durchdachtes Raumkonzept für Paare oder Familien.

Highlights der Wohnung:

Top-Lage: Mitten in Waidhofen, fußläufig zu EKZ, Schulen, Banken, Post und vielfältigen Gastronomien (Pizzeria, Cafés etc.)
Verkehr & Anbindung: Bushaltestelle und Bahnhof in der Nähe, schnelle Wege ins Umland
Einzel-Garagenstellplatz in der Tiefgarage – direkt ins Haus per Lift erreichbar
Kellerabteil & Gemeinschafts-Waschraum
Einkaufszentrum nur wenige Gehminuten entfernt
Ruhige Umgebung: Dank beruhigendem Hofblick ohne Autolärm
Individuell einrichtbar: Unmöbliert – gestalten Sie Ihr neues Zuhause ganz nach Ihrem Geschmack
Vorhandene Ausstattung: elektrische Jalousien, Multi-Media-Kabel, Glasfaseranschluss, programmierbares Thermostat
Miet-Wohnung in Waidhofen an der Thaya

Interesse geweckt?

Erfahren Sie mehr über diese Mietwohnung in Waidhofen an der Thaya.

Großzügig wohnen im Herzen von Waidhofen an der Thaya

Ihre neue Familienwohnung – jetzt verfügbar!

Sie suchen eine geräumige Wohnung mit hohem Wohnkomfort? Dann sind Sie hier genau richtig. In Waidhofen an der Thaya, wo große Familienwohnungen rar sind, wartet eine echte Ausnahmeimmobilie auf Sie!

Das erwartet Sie:

  • Großzügiger Wohnraum – perfekt für Familien oder alle, die Platz lieben
  • Zentrale Lage mit bester Anbindung
  • Tiefgarage & Lift – barrierefrei vom Auto direkt in die Wohnung
  • Loggia – für entspannte Stunden im Freien
  • Bezugsbereit – sofort einziehen und wohlfühlen

Top-Lage mit perfekter Infrastruktur

Ob Banken, Schulen, Gasthäuser, Einkaufsmöglichkeiten oder öffentliche Verkehrsmittel – alles ist fußläufig erreichbar. Und das Beste: Eine direkte Straßenverbindung zum Einkaufszentrum sorgt für noch mehr Komfort.

Schnell. Einfach. Unkompliziert.

Jetzt besichtigen und sofort einziehen – kontaktieren Sie uns noch heute!

Before
After
Nachher Vorher
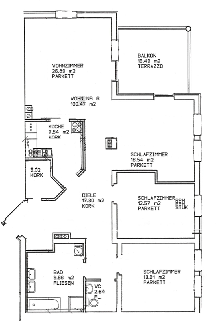
Raumplanung

Raumaufteilung

  • Gesamt Wohnfläche: 109,47 m²
  • Loggia: 13,49 m²
  • Flur: 17,30 m²
  • Abstellraum: 3,02 m²
  • Küche: 7,54 m²
  • WC: 2,64 m²
  • Bad: 9,66 m²
  • Schlafzimmer 1: 13,31 m²
  • Schlafzimmer 2: 12,57 m²
  • Wohn-/Schlafzimmer 3: 43,43 m²
  • Anzahl bewohnbare Räume: 8
  • Zimmer gesamt: 3
  • Nicht zur Wohnfläche gerechnet:
  • • Loggia
  • • Tiefgaragenplatz
  • • Kellerabteil
  • • Waschmaschinenraum
  • Mietpreis: € 1.200
| Allgemeine Informationen

Qualitäten der Stadt Waidhofen an der Thaya

| Video Überblick

Waidhofen an der Thaya

Kindergärten

Arbeitsstätten

Schwimm- &
Sportmöglichkeiten

| Kontaktieren Sie uns

Termin vereinbaren

Telefon Mietwohnung Waidhofen an der Thaya
+43 664 3023 111
Telefonnummer